Как обустроить турзону. Быстрые решения от ТЕХНОНИКОЛЬ
Это масштаб, требующий индустриальных темпов строительства, стандартизации, быстрых решений от бизнеса, но при этом интересных проектов и тактичного отношения к ландшафтам и историко-культурной среде.
В этом отношении панельно-каркасные префабы, комплекты из мини-бруса и модульные дома, пожалуй, наиболее актуальный вариант. Они позволяют возводить дома круглый год, а также не “уходить в стройку” на полгода и больше.
ТЕХНОНИКОЛЬ производит быстросборные постройки разного назначения из мини-бруса и клееного бруса и панельно-каркасные домокомплекты. А осенью 2025 года компания показала на профильной выставке PIR EXPO новый продукт — дом-модуль ТН АТОММ СЬЮТ АРКТИК. Такие дома производят на заводе в Нижегородской области, входящем в структуру корпорации.
Все объекты, которые предлагает заказчикам ТЕХНОНИКОЛЬ, — готовые решения, обеспечивающие быстрый возврат инвестиций.
Расскажем о разработках ТЕХНОНИКОЛЬ для туристической инфраструктуры.
Комплекты построек из мини-бруса и клееного бруса
В 2025-м году быстросборные постройки из мини-бруса, которые производит ТЕХНОНИКОЛЬ, стали настоящим хитом у частных заказчиков, турбизнеса, управляющих компаний.
В каталоге ДОМ ТЕХНОНИКОЛЬ больше двух десятков быстровозводимых построек, без которых не обходится ни одна туристическая зона, территория загородного отеля или туркомплекса. Такие постройки можно использовать для отдыха, хозяйственных нужд, в качестве летнего кафе или офиса.
В ассортименте — мини-домики, которые можно использовать в качестве сезонных средств размещения гостей. Есть также хозблоки, гаражи, разные по дизайну беседки и навесы, которые можно использовать для хранения мото- и садовой техники, прокатного инвентаря.
Особенность таких построек в том, что каждая из них — своего рода “конструктор”, который поставляют на одной паллете в транспортной упаковке. В комплекте — инструкция по сборке, крепеж и все деревянные детали — от балок нижнего перекрытия и шпунтованной доски пола до сплошного деревянного основания под гибкую черепицу. Бригада из двух монтажников может собрать такой домик за один рабочий день. Останется смонтировать кровельное покрытие, покрасить постройку изнутри и снаружи, подвести электричество — и можно принимать гостей. Строительство возможно и летом, и зимой — в “несезон”.
А еще, что немаловажно, все детали “конструктора” от ТЕХНОНИКОЛЬ имеют небольшой вес, их можно перенести вручную по лесным и горным тропинкам и собрать там, где не предусмотрены подъезды на транспорте.
Узнать больше о комплектах из мини-бруса
Гостевые дома по панельно-каркасной технологии
Панельно-каркасный дом делают на заводе — в виде готового комплекта панелей стен и перекрытий.
Такую постройку можно поставить как на фундамент из монолитного бетона, так и на облегченный — например, на винтовые сваи. В первом случае это будут капитальные строения.
Второй вариант позволяет сделать фундамент за считанные дни, в том числе на сложных грунтах, рельефе с перепадами высот, и, что важно — без ущерба для деревьев и ценной растительности и с тем же уровнем комфорта, что и в капитальном доме.
В отличие от советских прототипов, современные А-фреймы — всесезонные и с привычными горожанам удобствами. На фото — дома МАТИСС в экопарке “Поляны” — туристическом комплексе в Рязанской области, рядом с Мещерскими лесами и озерами. Номерной фонд представлен панельно-каркасными проектами ДОМ ТЕХНОНИКОЛЬ. При строительстве ставилась цель создать комфортные дома для гостей с минимальной нагрузкой на лесной ландшафт.
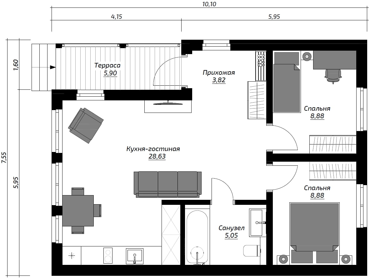
Дом МОНЕ 60. Проект 2025 года — шале с симметричной двускатной крышей, большой площадью остекления и экологичной деревянной отделкой. В ДОМ ТЕХНОНИКОЛЬ такой дом называют «самым быстрым».
Особенность проекта: заказчику не нужно ждать, пока дом спроектируют и построят. Готовые к отгрузке домокомплекты всегда есть на складе. Для перевозки к месту монтажа нужны две еврофуры стандартного объема 120 куб. м. На монтаж автокраном, прямо с колес, на готовом фундаменте отводится три-четыре дня — и можно приступать к внутренней отделке.
То есть, благодаря проекту МОНЕ 60, у заказчиков есть возможность сократить время на проектирование и строительство на многие месяцы, а значит, — раньше запустить проект.
Такой дом впишется и в плотно застроенный малоэтажный массив, и на ландшафты со сложным рельефом и перепадами высот — причем в последнем случае его можно окружить террасами с любой стороны. По планировке — классический гостевой дом комфорт-класса с двумя небольшими спальнями и просторной кухней-гостиной.
Узнать больше о быстром доме МОНЕ 60
Дом-модуль ТН АТОММ СЬЮТ АРКТИК
В этом году модульные дома разных классов и форматов очень популярны у турдевелопмента. Уникальность дома-модуля от ТЕХНОНИКОЛЬ в том, что он радикально отличается и от уже привычных модульных домов с габаритами морских контейнеров, и от модульных и капсульных построек на металлокаркасе, преимущественно китайского производства, внешне больше напоминающих туристический автобус, чем дом.
Модули ТН АТОММ СЬЮТ АРКТИК производят на заводе ООО «Малоэтажные комфортные дома» (МКД) в Нижегородской области, входящий в структуру Корпорации ТЕХНОНИКОЛЬ. Снаружи — мобильный дом-модуль в футуристическом дизайне, внутри — гостиничный номер высшей категории. На фото: Дом-модуль ТН АТОММ СЬЮТ АРКТИК, который экспонировался на выставке ПИР Экспо 2025, переезжает на постоянное место — в парк-отель «Лесной» в Солнечногорском районе Московской области.
У дома ТН АТОММ — массивный силовой каркас из клееного бруса и узнаваемый дизайн. Модуль всесезонный: за микроклимат отвечают двойной контур утепления, энергосберегающее покрытие окон, электрические теплые полы, бесшумные кондиционеры и системы вентиляции.
После установки останется только подключить воду, электричество — и можно принимать гостей.
ТН АТОММ совмещает технические характеристики «умного дома», футуристический экстерьер и домашний уют. Мебелью дом-модуль комплектуют прямо на заводе.
За зеркальными фасадами с энергосберегающим остеклением — полноценный дом в формате «евродвушки»: на 33 кв. м площади разместилась функциональная прихожая с встроенным шкафом, кухня-гостиная с двухместным раскладным диваном, санузел с душевой кабиной и бойлером, спальня с кроватью королевского размера и местами для хранения.
В таком модуле при использовании в качестве номерного фонда можно с комфортом разместить от одного до четырех гостей.
Подробнее о ТН АТОММ
О ТЕХНОНИКОЛЬ
ТЕХНОНИКОЛЬ — бренд с более чем тридцатилетней историей, один из ведущих производителей кровельных покрытий, гидроизоляции, широкого спектра теплоизоляционных материалов для “больших” строек и индивидуального жилищного строительства.
С 2023 компания запустила конвейерное производство панельно-каркасных домов для ИЖС и для индустрии гостеприимства.
Больше предложения для проектировщиков, подрядных организаций, девелоперов, инвесторов, операторов глэмпинг-индустрии, туристического и гостиничного бизнеса — на сайте ДОМ ТЕХНОНИКОЛЬ
erid F7NfYUJCUneTTxrKa8xP










